Prawidłowy rozstaw słupków ogrodzenia panelowego to klucz do stabilności i estetyki.
- Standardowa odległość między osiami słupków dla paneli 250 cm wynosi 257-258 cm.
- Wartość ta uwzględnia szerokość panelu, grubość słupków oraz miejsce na obejmy montażowe.
- Zawsze należy mierzyć odległość między środkami (osiami) słupków, nie ich krawędziami.
- Typy paneli (2D/3D) mają zazwyczaj tę samą szerokość i nie wpływają na standardowy rozstaw.
- W sytuacjach niestandardowych (np. nierówny teren, ostatni panel) konieczne jest docinanie paneli lub montaż schodkowy.
- Najczęstsze błędy to niewłaściwe wymiarowanie, brak uwzględnienia luzu na obejmy i niedokładne poziomowanie.

Dlaczego precyzyjny rozstaw słupków to fundament stabilnego ogrodzenia panelowego
Kiedy mówimy o budowie ogrodzenia panelowego, często skupiamy się na wyborze paneli, słupków czy bramy. Tymczasem, jeden z najbardziej krytycznych aspektów, czyli dokładny rozstaw słupków, bywa traktowany po macoszemu. To właśnie ta pozornie drobna decyzja projektowa ma ogromny wpływ na długoterminową stabilność, estetykę oraz, co równie ważne, potencjalne koszty całego przedsięwzięcia. Z mojego doświadczenia wynika, że ignorowanie tej zasady to prosta droga do frustracji i niepotrzebnych wydatków.
Stabilność, estetyka i koszt jak jedna decyzja wpływa na trzy kluczowe aspekty?
Precyzyjny rozstaw słupków to gwarancja stabilności konstrukcji. Gdy słupki są osadzone w odpowiednich odległościach, panele są równomiernie obciążone i prawidłowo zamocowane, co zwiększa ich odporność na silne wiatry, uderzenia czy inne uszkodzenia mechaniczne. Ogrodzenie nie będzie się chwiać ani uginać, zachowując swoją integralność przez lata.
Aspekt estetyczny jest równie ważny. Prawidłowy rozstaw zapewnia idealnie równą linię ogrodzenia, bez nieestetycznych szczelin, naciągnięć czy widocznych niedociągnięć. Panele układają się harmonijnie, tworząc spójną i atrakcyjną wizualnie barierę. Z kolei wszelkie odstępstwa od normy są natychmiast widoczne i psują ogólne wrażenie.
Na koniec, ale nie mniej istotne, są koszty. Dokładne wymierzenie i osadzenie słupków za pierwszym razem pozwala uniknąć kosztownych poprawek. Nie musisz kupować dodatkowych materiałów, tracić czasu na demontaż i ponowny montaż, ani martwić się o uszkodzenia paneli. To prosta droga do optymalizacji budżetu i uniknięcia nieprzewidzianych wydatków.
Czym grozi błąd w wymiarowaniu? Najczęstsze problemy na budowie
Błędne wymiarowanie słupków to niestety częsty scenariusz, który prowadzi do szeregu problemów. Z mojego doświadczenia mogę wymienić kilka najpoważniejszych konsekwencji:
- Niestabilność ogrodzenia: Jeśli słupki są zbyt daleko od siebie, panele mogą się uginać, chwiać, a nawet wypadać, szczególnie pod wpływem silnego wiatru. Zbyt bliski rozstaw z kolei może powodować niepotrzebne naprężenia.
- Trudności w montażu paneli: Panele mogą być za długie lub za krótkie w stosunku do rozstawu słupków, co uniemożliwia ich prawidłowe zamocowanie. Wymaga to albo docinania paneli na miejscu (co jest czasochłonne i może osłabić konstrukcję), albo użycia niestandardowych obejm, które często nie są tak estetyczne ani trwałe.
- Problemy z estetyką: Nierówny rozstaw prowadzi do krzywych linii ogrodzenia, widocznych szczelin i ogólnego wrażenia niedbałości. Panele mogą być nienaturalnie naciągnięte lub luźne.
- Konieczność demontażu i ponownego montażu: W skrajnych przypadkach, gdy błędy są zbyt duże, jedynym rozwiązaniem jest demontaż części lub całości ogrodzenia i ponowne osadzenie słupków. To generuje ogromne straty czasu i pieniędzy.
- Zwiększone zużycie materiałów: Nieprawidłowy rozstaw może wymusić dokupienie dodatkowych obejm, śrub, a nawet paneli, jeśli te okażą się zbyt krótkie lub zostaną uszkodzone podczas nieudanych prób montażu.

Jaka jest standardowa odległość między słupkami? Konkretna odpowiedź
Przejdźmy do sedna, czyli konkretnej odpowiedzi na pytanie o standardową odległość między słupkami. Jest to informacja, która powinna być punktem wyjścia dla każdego, kto planuje montaż ogrodzenia panelowego. Wiem, że wielu z Was szuka tej precyzji, dlatego postaram się ją jasno przedstawić.Złota zasada 257-258 cm skąd dokładnie bierze się ta wartość?
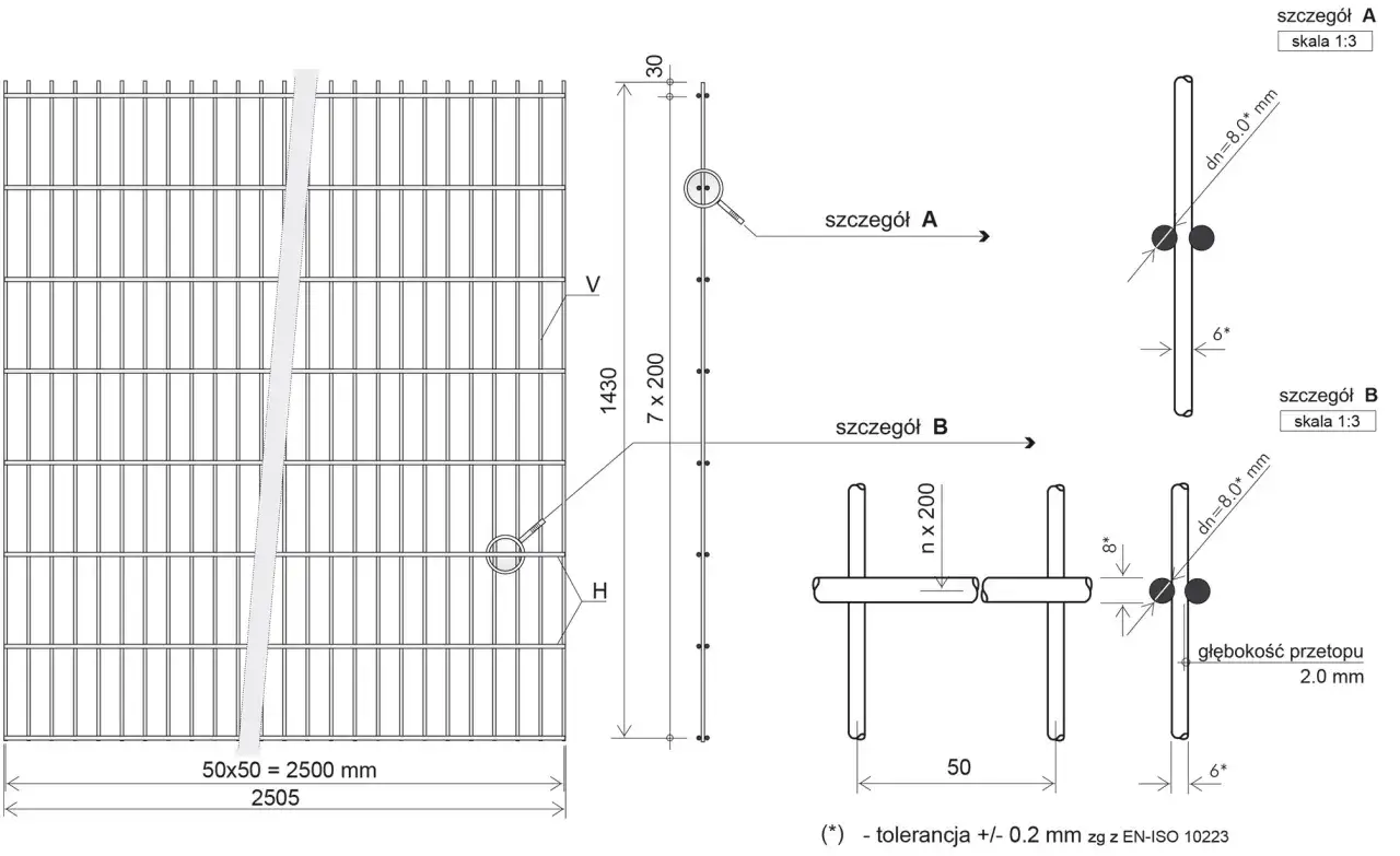
Dla standardowego panelu ogrodzeniowego o szerokości 250 cm (2500 mm), najczęściej podawana i rekomendowana odległość między osiami słupków wynosi od 257 do 258 cm. Dlaczego akurat taka wartość? Otóż, nie jest to liczba przypadkowa, lecz wynik prostej kalkulacji, która uwzględnia wszystkie niezbędne elementy montażowe.
Na tę wartość składają się następujące komponenty:
- Szerokość samego panelu: 2500 mm.
- Miejsce na obejmy montażowe: Po każdej stronie panelu potrzebujemy około 15-20 mm luzu na obejmę, która mocuje panel do słupka. Daje to łącznie 30-40 mm (15-20 mm x 2).
- Grubość słupków: Standardowo słupki mają przekrój 60x40 mm lub 60x60 mm. W obliczeniach rozstawu między osiami słupków, musimy uwzględnić połowę grubości słupka z jednej strony i połowę z drugiej. Jeśli mamy słupki 60x40 mm i montujemy panel do krótszego boku (40 mm), to od osi do krawędzi słupka mamy 20 mm. Jeśli panel jest mocowany do dłuższego boku (60 mm), to od osi do krawędzi mamy 30 mm. Najczęściej panele mocuje się do boku 40 mm.
Sumując te wartości, otrzymujemy:
2500 mm (panel) + 30-40 mm (luz na obejmy) = 2530-2540 mm. Do tego dochodzi połowa grubości słupka z jednej strony i połowa z drugiej, jeśli mierzymy od osi. Czyli jeśli słupki mają 40 mm szerokości, to od osi do osi mamy 2500 mm (panel) + 20 mm (połowa słupka) + 20 mm (połowa słupka) + 30-40 mm (luz na obejmy) = 2570-2580 mm, czyli 257-258 cm. To jest właśnie ta "złota zasada", którą zawsze powtarzam moim klientom.
Panel 250 cm, słupek 6x4 cm i obejmy: Prosta matematyka Twojego ogrodzenia
Aby to jeszcze bardziej uprościć, wyobraźmy sobie standardowy scenariusz: masz panel o szerokości 250 cm, słupki o przekroju 6x4 cm (gdzie panel będzie mocowany do boku 4 cm) i standardowe obejmy. W takim przypadku, rozstaw słupków (mierzony od osi do osi) powinien wynosić:
250 cm (szerokość panelu) + 2 cm (połowa szerokości słupka) + 2 cm (połowa szerokości słupka) + 3-4 cm (luz na obejmy) = 257-258 cm.
Pamiętaj, że te "Kluczowe wymiary" zależą od szerokości przęsła, przekroju słupków i wymiaru obejm mocujących. Zawsze warto sprawdzić specyfikację producenta paneli i obejm, aby mieć pewność co do dokładnych wymiarów.
Czy rozstaw dla paneli 2D i 3D jest taki sam?
To bardzo dobre pytanie, które często pojawia się w rozmowach o ogrodzeniach panelowych. Odpowiedź brzmi: tak, standardowy rozstaw dla paneli 2D i 3D jest zazwyczaj taki sam. Wynika to z faktu, że "Typy paneli (2D/3D)" mają zazwyczaj tę samą standardową szerokość, która wynosi 250 cm. Różnica między panelami 2D a 3D polega głównie na ich konstrukcji i grubości drutu panele 2D są płaskie i wykonane z grubszych drutów (np. 6/8/6 mm), natomiast panele 3D posiadają przetłoczenia usztywniające i są zazwyczaj wykonane z cieńszych drutów (np. 4/5 mm). Ta różnica w grubości drutu czy obecność przetłoczeń nie wpływa bezpośrednio na odległość montażową między słupkami, która jest dyktowana przede wszystkim szerokością samego panelu oraz wymaganym luzem na obejmy.
Jak krok po kroku prawidłowo wymierzyć odległość na swojej działce?
Teraz, gdy już wiesz, jaka jest standardowa odległość, pora przejść do praktyki. Prawidłowe wymierzenie odległości na Twojej działce to klucz do sukcesu. Pamiętaj, że pośpiech i niedokładność na tym etapie mogą zemścić się później.
Narzędzia, których potrzebujesz: miarka, sznurek i poziomica to Twoi sprzymierzeńcy
Zanim zaczniesz, upewnij się, że masz pod ręką odpowiednie narzędzia. To one zapewnią Ci precyzję i ułatwią pracę:- Długa miarka zwijana: Najlepiej stalowa, o długości co najmniej 5-10 metrów, aby mierzyć większe odcinki bez konieczności przestawiania.
- Sznurek murarski i kołki/pręty: Niezbędne do wyznaczenia prostej linii ogrodzenia.
- Poziomica: Długa poziomica (np. 120-150 cm) oraz poziomica laserowa (jeśli masz dostęp) znacznie ułatwią precyzyjne poziomowanie słupków.
- Pion budowlany lub poziomica do słupków: Do sprawdzenia pionu słupków.
- Kreda, spray lub farba w sprayu: Do zaznaczania punktów na ziemi.
- Młotek: Do wbijania kołków.
Wyznaczanie osi, a nie krawędzi klucz do uniknięcia kosztownej pomyłki
To jest jeden z najważniejszych punktów, na który zawsze zwracam uwagę. "Zawsze należy mierzyć odległość między środkami (osiami) słupków", a nie między ich wewnętrznymi krawędziami. Dlaczego to takie ważne? Jeśli zmierzysz odległość od krawędzi do krawędzi, nie uwzględnisz grubości słupka, a także luzu na obejmy. W efekcie, panele będą albo za długie, albo za krótkie, co uniemożliwi ich prawidłowy montaż lub zmusi Cię do nieestetycznego docinania. To jeden z "Najczęstszych błędów", który widzę na budowach. Mierząc od osi do osi, automatycznie uwzględniasz grubość słupka w swoim rozstawie, co jest kluczowe dla idealnego dopasowania paneli.
Słupek początkowy, pośredni i narożny: Jak zarządzać rozstawem w newralgicznych punktach?
Prawidłowa "Procedura montażu" zaczyna się od strategicznego planowania. Oto jak to zrobić krok po kroku:
- Wyznacz punkty początkowe, końcowe i narożne: Zacznij od wkopania i zabetonowania (lub osadzenia w inny sposób) słupków początkowych, końcowych oraz wszystkich słupków narożnych. To są Twoje punkty referencyjne. Upewnij się, że są idealnie wypoziomowane w pionie i na odpowiedniej wysokości.
- Rozciągnij sznurek: Po osadzeniu kluczowych słupków, rozciągnij sznurek murarski wzdłuż całej planowanej linii ogrodzenia, łącząc osie słupków początkowych, końcowych i narożnych. Sznurek powinien być napięty i znajdować się na wysokości, na której będą montowane panele (np. górna krawędź paneli).
- Wyznacz miejsca na słupki pośrednie: Idąc wzdłuż napiętego sznurka, odmierzaj standardową odległość (np. 257-258 cm) od osi poprzedniego słupka i zaznaczaj punkty, w których mają stanąć kolejne słupki pośrednie. Użyj kredy lub farby w sprayu. Pamiętaj, aby mierzyć od osi do osi!
- Sprawdź i skoryguj: Po wyznaczeniu wszystkich punktów, jeszcze raz sprawdź miarką, czy odległości są równe. W razie potrzeby dokonaj drobnych korekt.
- Wstrzymaj się z kopaniem wszystkich dołków: Moja rada: nie kop wszystkich dołków od razu. Lepiej jest osadzić kilka pierwszych słupków, zamontować do nich panele, a następnie na bieżąco kopać i osadzać kolejne słupki, mierząc odległość od już zamontowanego panelu. To pozwala na bieżąco korygować drobne niedokładności i uniknąć sytuacji, w której wszystkie dołki są już wykopane, a okazuje się, że rozstaw nie pasuje.
Co zrobić, gdy standardowy wymiar nie pasuje? Rozwiązania dla trudnych przypadków
W idealnym świecie, linia ogrodzenia byłaby zawsze idealną wielokrotnością szerokości panelu. Niestety, w praktyce zdarza się to niezwykle rzadko. Dlatego musimy być przygotowani na "Sytuacje niestandardowe". Na szczęście, istnieją sprawdzone rozwiązania dla trudnych przypadków, które pozwalają zachować estetykę i funkcjonalność ogrodzenia.
Docinanie paneli: kiedy jest nieuniknione i jak zrobić to profesjonalnie?
Jak wspomniałem, "Prawie nigdy linia ogrodzenia nie jest idealną wielokrotnością długości paneli". Oznacza to, że docinanie ostatniego przęsła w danym ciągu ogrodzenia jest niemal nieuniknione. Nie jest to powód do zmartwień, ale wymaga precyzji.
Kiedy docinać? Docinanie jest konieczne, gdy ostatni odcinek ogrodzenia jest krótszy niż standardowy panel. Zamiast próbować "rozciągać" panele lub tworzyć zbyt duże szczeliny, lepiej jest profesjonalnie przyciąć panel.
Jak to zrobić profesjonalnie?
- Użyj szlifierki kątowej z tarczą do metalu.
- Zabezpiecz miejsce cięcia przed korozją po docięciu panelu, odsłonięte końcówki drutów należy zabezpieczyć farbą antykorozyjną, a następnie farbą w kolorze panela. To kluczowe dla trwałości.
- Moja osobista wskazówka: jeśli to możliwe, docięte panele najlepiej montować w mniej widocznych miejscach, na przykład przy słupkach narożnych lub tam, gdzie będą mniej rzucać się w oczy. Dzięki temu ewentualne niedoskonałości cięcia będą mniej zauważalne.
Ogrodzenie na pochyłym terenie: Jak montaż kaskadowy wpływa na planowanie słupków?
Budowa ogrodzenia na pochyłym terenie wymaga specjalnego podejścia. W takich przypadkach stosuje się "Montaż na pochyłości", czyli tak zwany montaż schodkowy (kaskadowy). Co ważne, odległość między słupkami wciąż pozostaje standardowa (np. 257-258 cm), ale każdy kolejny panel jest obniżany względem poprzedniego, tworząc efekt schodów.
Kluczem do sukcesu jest tutaj idealne wypoziomowanie słupków w pionie. Mimo że panele będą schodzić w dół, każdy słupek musi stać prosto. Wymaga to precyzyjnego osadzania słupków na różnych wysokościach, co może wiązać się z koniecznością wykonania głębszych wykopów pod niektóre z nich. Pamiętaj, aby zawsze mierzyć odległość między osiami słupków, niezależnie od różnicy poziomów.
Ostatni panel w rzędzie jak estetycznie zakończyć linię ogrodzenia?
Zakończenie linii ogrodzenia ostatnim panelem często bywa wyzwaniem. Jeśli odcinek jest krótszy niż standardowy panel, musisz go dociąć. Moja rada: planuj docinanie z wyprzedzeniem. Zmierz dokładnie ostatni odcinek i odetnij panel z odpowiednim zapasem na obejmy. Zawsze lepiej jest dociąć panel trochę dłużej i ewentualnie skorygować, niż za krótko.
Aby zapewnić estetyczne i stabilne zakończenie, upewnij się, że docięty panel jest solidnie zamocowany do ostatniego słupka. Jeśli panel jest bardzo krótki, rozważ zastosowanie dodatkowych obejm lub specjalnych mocowań, aby zapewnić mu odpowiednią sztywność. Pamiętaj o zabezpieczeniu krawędzi przed korozją, aby całe ogrodzenie służyło Ci przez długie lata.
Tych błędów unikaj jak ognia! Najczęstsze pomyłki przy wymiarowaniu
Po latach doświadczeń z montażem ogrodzeń panelowych, widziałem już chyba wszystkie możliwe błędy. Chociaż niektóre są drobne, inne potrafią całkowicie zniweczyć efekt pracy i generować niepotrzebne koszty. Chcę Cię przed nimi przestrzec, abyś mógł uniknąć tych "Najczęstszych błędów".
Pułapka nr 1: Mierzenie odległości "od słupka do słupka" zamiast w osiach
To jest chyba najbardziej powszechny błąd, jaki popełniają osoby montujące ogrodzenie po raz pierwszy. Zamiast mierzyć odległość między osiami (środkami) słupków, mierzą ją między ich wewnętrznymi krawędziami. Konsekwencje są natychmiastowe i bolesne: jeśli słupki mają np. 6 cm szerokości, a Ty zmierzysz od krawędzi do krawędzi 250 cm, to w rzeczywistości od osi do osi masz około 256 cm. W efekcie, panel o szerokości 250 cm będzie za krótki, a Ty będziesz miał problem z zamocowaniem obejm i uzyskaniem stabilności. Albo na odwrót jeśli zmierzysz 257 cm od krawędzi do krawędzi, panele będą za długie. Zawsze, ale to zawsze, mierz odległość między osiami słupków to jest klucz do sukcesu.
Pułapka nr 2: Zapominanie o luzie montażowym na obejmy
Kolejny błąd, który często prowadzi do frustracji, to nieuwzględnienie luzu montażowego na obejmy. Nawet jeśli zmierzysz odległość między osiami słupków idealnie na 250 cm, panel nie zmieści się między słupki, ponieważ obejmy (czy to złączki, czy cybanty) potrzebują kilku milimetrów przestrzeni z każdej strony, aby prawidłowo objąć słupek i panel. Brak tego luzu (ok. 1,5-2 cm na stronę) sprawi, że panele będą zbyt ciasno spasowane, co utrudni montaż, może spowodować ich nienaturalne naprężenie, a nawet uszkodzenie. Pamiętaj, aby te dodatkowe 3-4 cm na obejmy zawsze doliczyć do szerokości panelu, uzyskując te magiczne 257-258 cm.
Przeczytaj również: Jak wyczyścić płot z mchu? Skuteczny poradnik i trwała ochrona.
Pułapka nr 3: Brak idealnego pionu, czyli dlaczego odległość na dole i na górze musi być identyczna
Wydaje się oczywiste, że słupki powinny stać idealnie prosto, ale często w pośpiechu lub z braku odpowiednich narzędzi, zaniedbuje się precyzyjne poziomowanie w pionie. Jeśli słupek jest choćby minimalnie nachylony, odległość między nim a kolejnym słupkiem będzie inna na dole, a inna na górze. Na przykład, na dole może wynosić 257 cm, ale na górze już 259 cm. W takiej sytuacji panel, który ma stałą szerokość, nie będzie pasował idealnie. Będzie albo zbyt ciasny u góry, albo zbyt luźny na dole, co prowadzi do problemów z estetyką (krzywe linie), stabilnością (panel nie jest równomiernie podparty) i trudnościami w montażu. Zawsze używaj poziomicy do słupków lub długiej poziomicy z pionem, aby upewnić się, że każdy słupek jest idealnie wypoziomowany w pionie.
